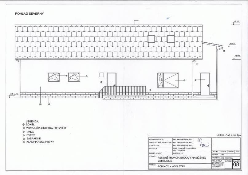
Rekonštrukcia budovy hasičskej zbrojnice
Obec Ludrová v roku 2020 získala z Ministerstva vnútra Slovenskej republiky dotáciu na Rekonštrukciu budovy hasičskej zbrojnice v čiastke 29 964,13€ čo predstavuje 77% všetkých nákladov. V rámci rekonštrukcie bude vykonané zateplenie stavby a pristavenie prechodového schodišťa do podkrovia. V podkroví bude vybudovaná odpočinková miestnosť.
Budú vykonané nasledovné rekonštukčné práce:
- dobetónovanie, odizolovanie a zateplenie základovej kkonštrukcie,
- prístavba prechodovej meistnosti so schodiskom na druhé poschodie,
- vytvorenie odpočinkovej miestnosti so sociálnymi zariadeniami na druhom poschodí.
Podrobnosti o vložení záznamu
Dátum vloženia:
20. 2. 2020 11:42
Dátum poslednej aktualizácie:
30. 9. 2025 11:44
